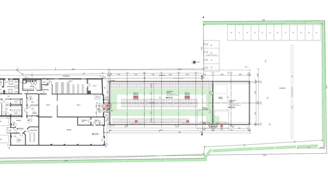
Projekt 18035 Download PDF Download PDF Download PDF Download PDF Download PDF Download PDF Download PDF Download PDF